Descripción
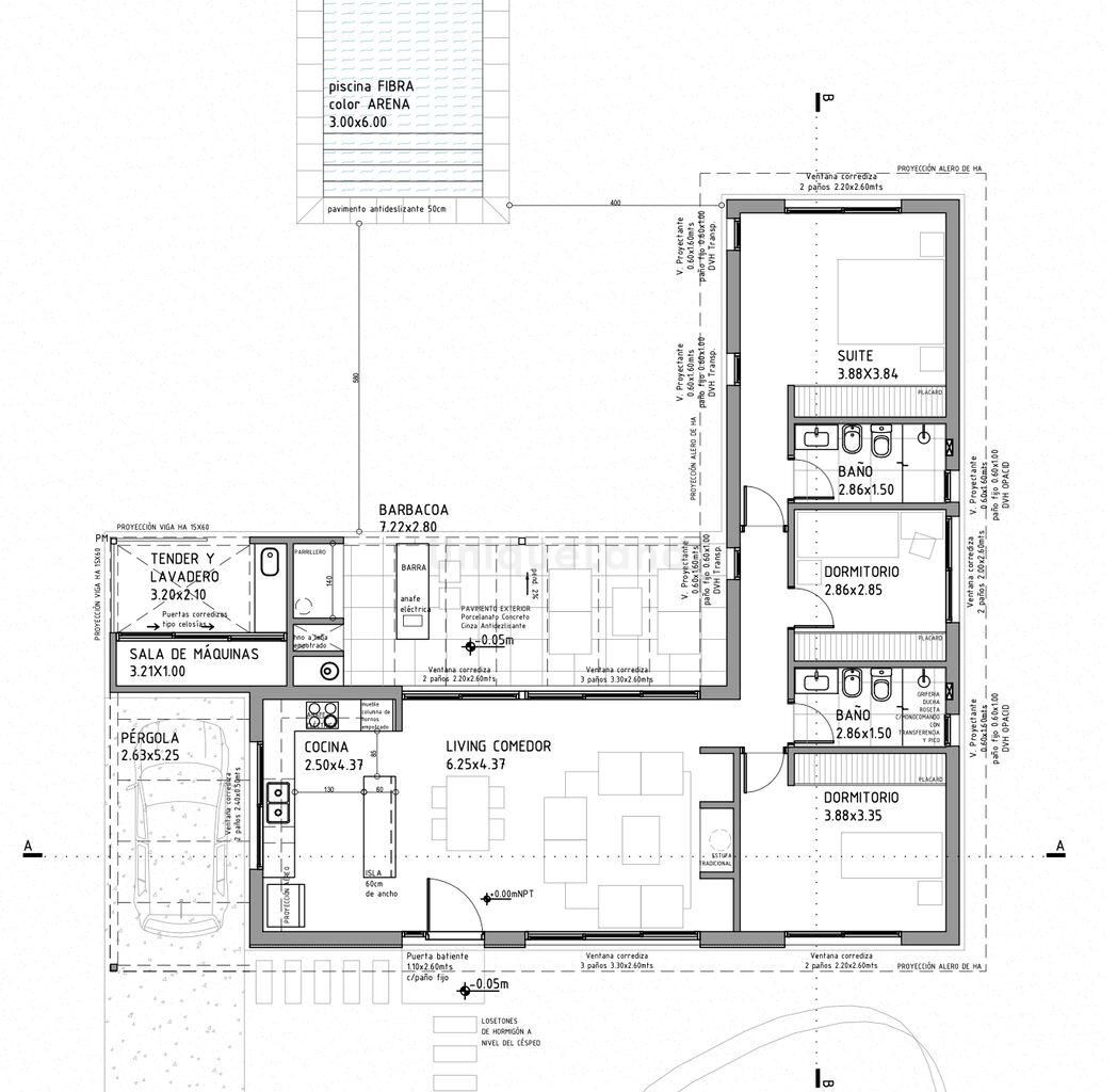
Cómoda, práctica y funcional casa en venta de una planta, terminada a fines de 2024, con 3 dormitorios y 2 baños completos. Ideal para disfrutar la vida familiar en un entorno natural y con mucha proyección.La propiedad está ubicada dentro del barrio La Juana sobre la calle principal, la cual se encuentra asfaltada en prácticamente su totalidad. En un terreno de 919 m2, se desarrolla esta vivienda en venta con orientación este, la cual cuenta con un total de 150m2 construidos, de los cuales 110m2 son interiores y 40m2 semicubiertos.
La propiedad cuenta con cochera para un vehículo y la fachada principal se encuentra revestida en piedra. El techo de la vivienda se realizó en vigueta y bovedilla para mejorar su acondicionamiento térmico. Cuenta con cielorraso de yeso en todos sus espacios interiores, pisos de porcelanato, ventanas de pvc con vidrio DVH y mosquiteros; a su vez en todos los dormitorios cuenta con cortinas de enrollar motorizadas y aires acondicionados. Otras características importantes de la vivienda es que cuenta con losa radiante por bomba de calor, con termostatos independientes por ambiente; riego automático el cual se abastece del pozo de agua general del barrio y hacia el fondo de la propiedad se ubica la piscina revestida en piedra de aproximadamente 3x6m, con buena orientación para su disfrute.
Una vez dentro de la propiedad, nos encontramos con un amplio living-comedor frente/fondo con cocina integrada por una barra de diseño contemporáneo. El espacio que se genera es cómodo, funcional y con muy buena luz natural. El living cuenta con salida hacia la pérgola posterior, la cual cuenta con un parrillero revestido en piedra, una pileta con mueble inferior y una con un anafe eléctrico. Hacia la izquierda del parrillero, se encuentra la sala de máquinas y la zona de lavadero/tender.
La zona íntima de la vivienda se desarrolla hacia la derecha del living-comedor, a través de un pasillo de distribución, donde encontramos un dormitorio al frente con buenas proporciones, el cual incluye un gran placard y aire acondicionado. Hacia el lateral, encontramos un baño completo, con terminaciones de alta calidad y con ventana para facilitar su aireación. Luego se encuentra el segundo dormitorio, que también tiene un placard y aire acondicionado. Hacia el final del pasillo de distribución, encontramos la suite principal con baño completo y un amplio placard. Dicha suite cuenta con amplios ventanales, muy buena iluminación y es muy espaciosa.
Esta propiedad es una oportunidad para invertir en calidad de vida y conexión con la naturaleza, ya que se localiza en un barrio privado de Canelones, que se encuentra en desarrollo. Actualmente el barrio cuenta con terrenos listos para construir y reventa de casas terminadas o en construcción. Se presenta como una oportunidad para invertir y vivir en un barrio tranquilo.
En cuanto a sus amenities, el barrio en un futuro contará con La Juana Kids (servicio de guardería), el cual se encuentra en construcción, Club House, canchas de pádel y tenis, piscina abierta y cerrada, centro comercial y todas sus calles asfaltadas.
Actualmente cuenta con portería y seguridad las 24 horas, video vigilancia y mantenimiento de áreas comunes, iluminación de las calles, agua para riego con conexión directa a la puerta de cada lote, recolección de residuos dos veces a la semana y una vez a la semana de reciclaje. Todo esto incluido en bajos gastos comunes.
No dude en agendar su visita o contactarnos para mas información.
Características de la propiedad
3 Habitaciones
Baños: 2
Superficie: 150,00 m²
Superficie Construida: 110,00 m²
Superficie Terreno: 919m²
Superficie Balcones: 40m²
Dormitorios en Suite: 1
Cochera: 1
Gastos Comunes: $U 10.000
Piscina
Parrillero
Calefacción: Losa radiante por bomba de calor
Orientación: Este
Propiedad Horizontal
Plantas: 1
Año de Construcción: 2024
Seguridad: Portería 24hs
Jardín
Acepta Mascotas

Conozca +
Consultar
Coordinar Visita
Recomendar